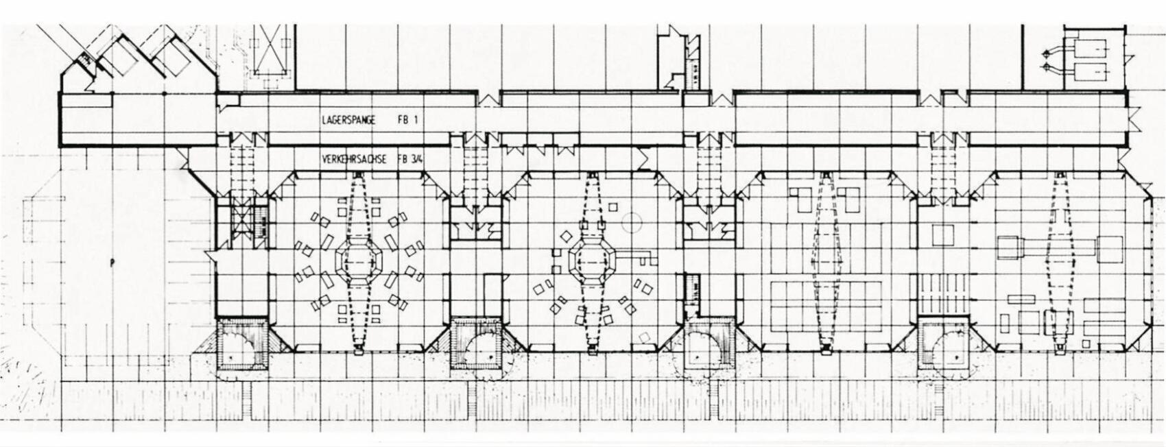
Neubau von 4 Zeltdachpavillons für den Möbelhersteller Wilkhahn. Die Bearbeitung erfolgte in Zusammenarbeit mit Frei Otto. Auf einer Grundfläche von jeweils 22x22m beherbergen die Pavillons kleine überschaubare Produktionseinheiten.
Fotos: © Wilkhahn
Bad Münder / Fertigstellung: 1987 / BGF: 2.300 m²

Rückblickend bleibt nachhaltig in Erinnerung, wieviel Spaß es machte, für diesen Bauherrn tätig zu sein, der mit so viel Engagement und Vertrauensvorschuss den Architekten gegenüber agierte.
Holger Gestering - Projektleiter











